Строительство домов и бань из профилированного
бруса под ключ в Новосибирске
Производство домокомплектов
из профилированного бруса
Продажа
пиломатериалов
Главная
Новости
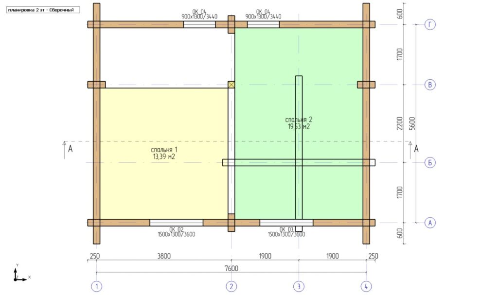
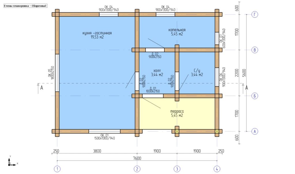
Завершение строительства двухэтажного жилого дома из профилированного бруса

Завершение строительства двухэтажного жилого дома из профилированного бруса

Строительство домов из профилированного бруса — это привлекательный проект создания комфортного и экологичного жилья, предназначенного для круглогодичного проживания. Этот пиломатериал отличается высокими теплоизоляционными свойствами, долговечностью и красивым внешним видом. О завершении очередного проекта – строительства двухэтажного жилого дома из профилированного бруса толщиной 200 мм, размером 6х8 метров, стоимостью под усадку 2,5 млн. рублей официально сообщает компания ПК-СТРОЙ из Новосибирска, специализирующаяся на возведении частных деревянных домостроений. В его рамках были выполнены работы по:

  • проектированию с учетом утвержденного заказчиком технического задания и согласованию документации;
  • заливке фундамента;
  • установке стен из профилированного бруса собственного производства, прошедшего дополнительную сушку для минимизации усадки;
  • возведению кровли;
  • электрификации и установке инженерных систем;
  • внутренней чистовой отделке и т.д.

Компания ПК-СТРОЙ готова к реализации очередных проектов по строительству домов из профилированного бруса, а также их возведению из готовых домокомплектов, изготовленных в заводских условиях. Это существенно сокращает время от заливки фундамента до сдачи в эксплуатацию.

Проектирование
любой сложности
Разрабатываем индивидуальные и типовые решения с учетом пожеланий заказчика, особенностей участка и климата. Современные технологии позволяют точно просчитать конструкцию и инженерные системы, создавая тёплые и экологичные дома.
Все виды
строительных работ
Наша компания выполняет полный комплекс строительных работ — от закладки фундамента до внутренней отделки под ключ. Благодаря собственному производству и опытной команде специалистов, мы гарантируем точность исполнения, долговечность конструкций и своевременное завершение всех работ.
Доступные цены
и гарантия
Мы предлагаем честные и прозрачные цены на строительство домов без скрытых доплат. Благодаря собственному производству и отлаженным процессам, наши клиенты получают высокое качество по разумной стоимости.
На все работы и материалы предоставляется официальная гарантия, что подтверждает нашу ответственность и уверенность в результате.
Семейная ипотека
по эскроу от 6%
Оформите льготную ипотеку с первым взносом 20,1% в одном из банков-партнёров.
Заключите договор на строительство, чтобы воспользоваться пониженной ставкой.
Девелоперам
и архитекторам
  • Надежное партнёрство и четкие сроки
  • Индивидуальные проекты при заказе от 5-ти домов
  • Доставляем по всей России
Заказчикам
  • Все виды строительных работ
  • Собранный дом на участке за 2 месяца
  • Подходит для ипотеки — готовы работать со всеми представленными банками, есть аккредитация
Отзывы из 2ГИС
Заказать звонок

Поможем выбрать проект, доработать готовый или реализовать
ваш индивидуальный — мы всегда на связи!

Вы можете отозвать своё согласие, написав на почту pk-stroy@mail.ru

Или вы можете позвонить нам и получить бесплатную консультацию