Строительство домов и бань из профилированного
бруса под ключ в Новосибирске
Производство домокомплектов
из профилированного бруса
Продажа
пиломатериалов
Главная
Типовые проекты
Баня 6х4 «Иваныч»

Баня 6х4 «Иваныч»

830 000 руб.
6000x4000
Площадь 21.2 м2
Баня
1 Этаж

Баня 6х4 с не большой террасой из профилированного бруса. Баня из массива сосны, сечением 150х150h. Высота стен 2,34м. Цена под усадку 830 000 рублей. Закажите свою планировку дома! Цена актуальна на момент публикации.

В стоимость входит; монтаж стенового комплекта, балок перекрытий, кровли покрытой металлочерепицей, свайный ЖБ фундамент.

Так же вы можете приобрести домокомплект для самостоятельной сборки, цена комплекта стен из Сосны 13 м3 318 500 руб., из массива Кедра 351 000 руб.

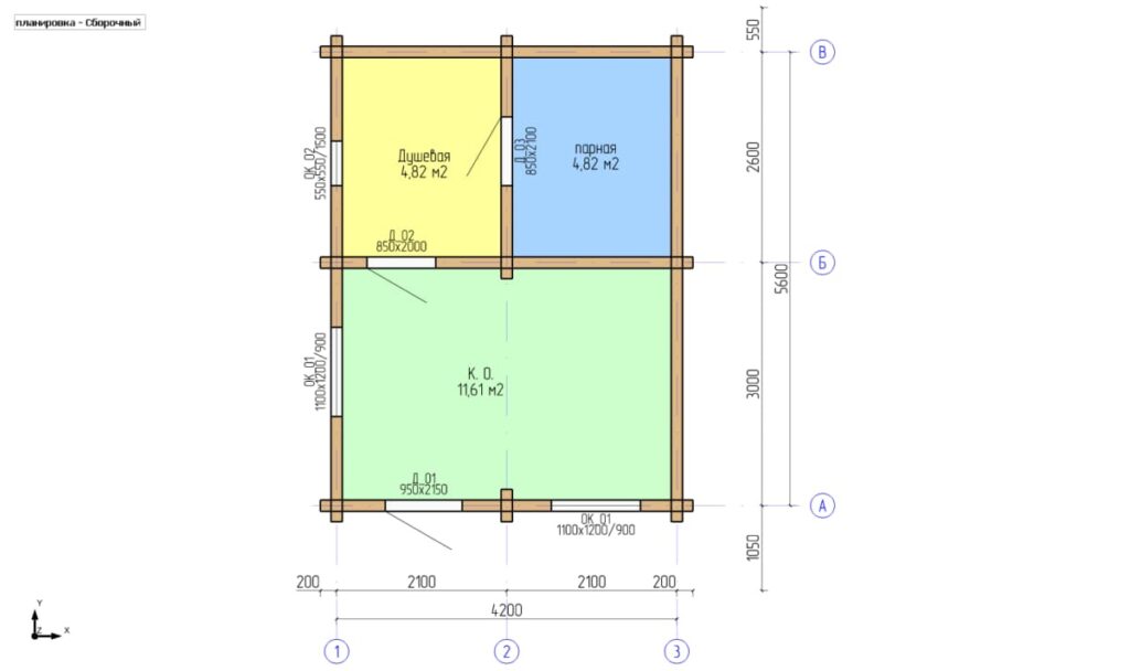
Планировка бани 6х6 включает в себя:
— Парилка 4,8 м²,
— Комната отдыха 11,5 м²,
— Душевая 4,8 м²,

Общая площадь бани 21,2 м2.

Подробную информацию об этом проекте или объекте вы можете получить по телефону:
Или по адресу
г. Новосибирск, ул. Северный проезд, 8к4/2.

Компания «ПК-Строй» — проектируем ваши идеи — строим ваши мечты! Собственное производство клееного бруса, термобруса, профилированного бруса, минибруса, а так же домокомплектов для самостоятельной сборки! Свои камерные сушилки! Работаем с давальческой древесиной!

Благодаря производству полного цикла, мы можем высушить брус, прострогать, нарезать чашки домокомплекта и построить дом вашей мечты! Или же, продадим вам домокомплект с подробной инструкцией для самостоятельной сборки! Не забудьте прислать фото, после монтажа!

Индивидуальное проектирование от 200 р/м2. К примеру, стоимость проекта дома 6х6, всего 7000 рублей.

Любой пункт сметы обсуждается, корректируется и видоизменяется в зависимости от того, какие материалы или работы вы можете предоставить или выполнить самостоятельно! Цена актуальна на момент публикации.

Реальные отзывы наших Клиентов на FLAMP.RU и в 2ГИС.

Домокомплекты помогают
существенно сократить
сроки строительства
Архитектура
и проектирование
4-8 недель

1. Консультация
Обсуждаем ваши пожелания, стиль, площадь, бюджет и особенности участка.

2. Выбор или адаптация проекта

Выбираем готовый проект или дорабатываем под вас. Возможна разработка с нуля.

3. Архитектурно-строительная часть
Готовим планы, фасады, разрезы и конструктивные решения с учётом технологии бруса.

4. Инженерные системы
Проектируем отопление, водоснабжение, электрику и вентиляцию.

5. Рабочая документация
Формируем комплект чертежей для производства и строительства.

6. Согласование
Утверждаем проект с вами и запускаем в работу.

Подготовка участка
и фундамента
1-4 недели

1. Осмотр и анализ участка

Проводим выезд, оцениваем рельеф, грунт и подъездные пути. При необходимости — геология и геодезия.

2. Подготовка площадки

Очищаем участок, выравниваем, устраиваем временные дороги и зону хранения материалов.

3. Разметка и земляные работы
Выполняем точную разметку, выкапываем котлован или траншеи, формируем подушку из песка и щебня.

4. Устройство фундамента
Собираем опалубку, армируем и заливаем бетон. Контролируем качество и соблюдаем технологию.

5. Завершающие работы
Проводим гидроизоляцию, при необходимости утепляем и подготавливаем основание под сборку дома.

Производство
домокомплекта
1-2 недели

1. Подготовка проекта

Формируем рабочую документацию: чертежи, деталировку, схемы сборки.

2. Сырьё и сушка

Используем качественную древесину от проверенных поставщиков. Сушим до нужной влажности в автоматических камерах.

3. Изготовление клееного бруса

Склеиваем ламели в прочный брус, контролируем прочность и геометрию.

4. Обработка на ЧПУ

Профилируем, делаем запилы, пазы и отверстия — всё точно по проекту.

5. Маркировка и упаковка

Каждый элемент подписывается и упаковывается для удобства сборки и защиты при транспортировке.

6. Комплектация и доставка

Формируем полный комплект дома и доставляем на участок точно в срок.

Сборка
домокомплекта
1-2 недели

1. Подготовка площадки

Проверяем фундамент, завозим материалы, подводим временные коммуникации.

2. Монтаж обвязки и гидроизоляции

Укладываем гидроизоляцию и нижнюю обвязку — основу для стен.

3. Сборка стен

Собираем стены из клееного бруса по проекту. Все элементы точно подогнаны, утеплитель — между венцами.

4. Перекрытия и второй этаж

Устанавливаем балки перекрытия и собираем второй этаж (если предусмотрен).

Фасадные
и кровельные работы
1-3 недели

1. Окна, двери

Устанавливаем оконно-дверные блоки. Проверяем геометрию, защищаем окна и двери, готовим материалы.

2. Монтаж кровли

Укладываем гидро- и пароизоляцию, обрешётку, монтируем кровельное покрытие, водостоки, снегозадержатели и вентиляцию. При необходимости — утепляем.

3. Обработка фасадов

Шлифуем (если нужно), обрабатываем антисептиками и защитными составами, герметизируем швы.

4. Декоративные элементы

Устанавливаем наличники, подшивку свесов, декоративные балки, оформляем террасы и крыльцо.

5. Завершение

Проводим финальную проверку и сдаём работы заказчику.

Инженерные
коммуникации
и внутренняя отделка
2-4 недели

1. Планирование и подготовка

Согласовываем схемы инженерных систем, размечаем трассы, подготавливаем технические помещения.

2. Прокладка коммуникаций

Монтаж электрики, водоснабжения, канализации, отопления, вентиляции и слаботочных систем.

3. Черновая отделка

Устройство перегородок, выравнивание поверхностей, монтаж черновых полов и утепление.

4. Чистовая отделка

Обработка стен и потолков, укладка напольных покрытий, установка дверей, лестниц и декоративных элементов.

5. Установка оборудования

Монтаж сантехники, освещения, розеток, подключение всех систем и проверка их работы.

6. Завершение

Финальная приёмка, устранение недочётов и передача дома заказчику.

Проектирование
любой сложности
Разрабатываем индивидуальные и типовые решения с учетом пожеланий заказчика, особенностей участка и климата. Современные технологии позволяют точно просчитать конструкцию и инженерные системы, создавая тёплые и экологичные дома.
Все виды
строительных работ
Наша компания выполняет полный комплекс строительных работ — от закладки фундамента до внутренней отделки под ключ. Благодаря собственному производству и опытной команде специалистов, мы гарантируем точность исполнения, долговечность конструкций и своевременное завершение всех работ.
Доступные цены
и гарантия
Мы предлагаем честные и прозрачные цены на строительство домов без скрытых доплат. Благодаря собственному производству и отлаженным процессам, наши клиенты получают высокое качество по разумной стоимости.
На все работы и материалы предоставляется официальная гарантия, что подтверждает нашу ответственность и уверенность в результате.
Семейная ипотека
по эскроу от 6%
Оформите льготную ипотеку с первым взносом 20,1% в одном из банков-партнёров.
Заключите договор на строительство, чтобы воспользоваться пониженной ставкой.
Девелоперам
и архитекторам
  • Надежное партнёрство и четкие сроки
  • Индивидуальные проекты при заказе от 5-ти домов
  • Доставляем по всей России
Заказчикам
  • Все виды строительных работ
  • Собранный дом на участке за 2 месяца
  • Подходит для ипотеки — готовы работать со всеми представленными банками, есть аккредитация
Отзывы из 2ГИС
Заказать звонок

Поможем выбрать проект, доработать готовый или реализовать
ваш индивидуальный — мы всегда на связи!

Вы можете отозвать своё согласие, написав на почту pk-stroy@mail.ru

Или вы можете позвонить нам и получить бесплатную консультацию