Строительство домов и бань из профилированного
бруса под ключ в Новосибирске
Производство домокомплектов
из профилированного бруса
Продажа
пиломатериалов
Главная
Построенные объекты
Гостевой дом 7х6 «Пичуги 2:0»

Гостевой дом 7х6 «Пичуги 2:0»

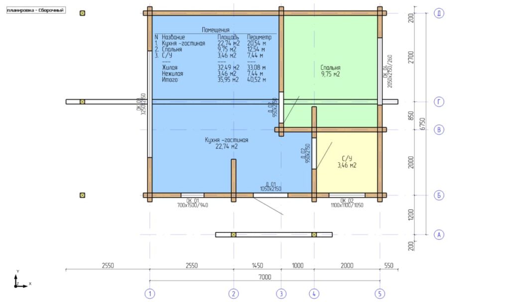
7000x6000
Площадь 36.5 м2
Дом
1 Этаж

Гостевой дом 7х6 с односкатной крышей для базы отдыха с террасой, из профилированного бруса. Дом из массива сосны, сечением 150х150h. Цена под усадку 1 567 000 рублей.

Цена актуальна на момент публикации.

В стоимость входит; монтаж стенового комплекта, балок перекрытий, утепленной кровли покрытой металлочерепицей, свайный ЖБ фундамент. Детали стен изготавливаются в заводских условиях, что ускоряет сборку на объекте и минимизирует строительный мусор, так же вы можете приобрести домокомплект для самостоятельной сборки, цена комплекта стен 20 м3 составляет 496 500 руб.

Планировка бани 6х4,5 включает в себя:
— Кухня-гостиная 23 м²,
— Спальня 10 м²,
— С/у 3,5  м²,

Общая площадь бани 36,5 м2

Подробную информацию об этом проекте или объекте вы можете получить по телефону:
Или по адресу
г. Новосибирск, ул. Северный проезд, 8к4/2.

Компания «ПК-Строй» — проектируем ваши идеи — строим ваши мечты! Собственное производство клееного бруса, термобруса, профилированного бруса, минибруса, а так же домокомплектов для самостоятельной сборки! Свои камерные сушилки! Работаем с давальческой древесиной!

Благодаря производству полного цикла, мы можем высушить брус, прострогать, нарезать чашки домокомплекта и построить дом вашей мечты! Или же, продадим вам домокомплект с подробной инструкцией для самостоятельной сборки! Не забудьте прислать фото, после монтажа!

Индивидуальное проектирование от 200 р/м2. К примеру, стоимость проекта дома 6х6, всего 7000 рублей.

Любой пункт сметы обсуждается, корректируется и видоизменяется в зависимости от того, какие материалы или работы вы можете предоставить или выполнить самостоятельно! Цена актуальна на момент публикации.

Реальные отзывы наших Клиентов на FLAMP.RU и в 2ГИС.

Домокомплекты помогают
существенно сократить
сроки строительства
Архитектура
и проектирование
4-8 недель

1. Консультация
Обсуждаем ваши пожелания, стиль, площадь, бюджет и особенности участка.

2. Выбор или адаптация проекта

Выбираем готовый проект или дорабатываем под вас. Возможна разработка с нуля.

3. Архитектурно-строительная часть
Готовим планы, фасады, разрезы и конструктивные решения с учётом технологии бруса.

4. Инженерные системы
Проектируем отопление, водоснабжение, электрику и вентиляцию.

5. Рабочая документация
Формируем комплект чертежей для производства и строительства.

6. Согласование
Утверждаем проект с вами и запускаем в работу.

Подготовка участка
и фундамента
1-4 недели

1. Осмотр и анализ участка

Проводим выезд, оцениваем рельеф, грунт и подъездные пути. При необходимости — геология и геодезия.

2. Подготовка площадки

Очищаем участок, выравниваем, устраиваем временные дороги и зону хранения материалов.

3. Разметка и земляные работы
Выполняем точную разметку, выкапываем котлован или траншеи, формируем подушку из песка и щебня.

4. Устройство фундамента
Собираем опалубку, армируем и заливаем бетон. Контролируем качество и соблюдаем технологию.

5. Завершающие работы
Проводим гидроизоляцию, при необходимости утепляем и подготавливаем основание под сборку дома.

Производство
домокомплекта
1-2 недели

1. Подготовка проекта

Формируем рабочую документацию: чертежи, деталировку, схемы сборки.

2. Сырьё и сушка

Используем качественную древесину от проверенных поставщиков. Сушим до нужной влажности в автоматических камерах.

3. Изготовление клееного бруса

Склеиваем ламели в прочный брус, контролируем прочность и геометрию.

4. Обработка на ЧПУ

Профилируем, делаем запилы, пазы и отверстия — всё точно по проекту.

5. Маркировка и упаковка

Каждый элемент подписывается и упаковывается для удобства сборки и защиты при транспортировке.

6. Комплектация и доставка

Формируем полный комплект дома и доставляем на участок точно в срок.

Сборка
домокомплекта
1-2 недели

1. Подготовка площадки

Проверяем фундамент, завозим материалы, подводим временные коммуникации.

2. Монтаж обвязки и гидроизоляции

Укладываем гидроизоляцию и нижнюю обвязку — основу для стен.

3. Сборка стен

Собираем стены из клееного бруса по проекту. Все элементы точно подогнаны, утеплитель — между венцами.

4. Перекрытия и второй этаж

Устанавливаем балки перекрытия и собираем второй этаж (если предусмотрен).

Фасадные
и кровельные работы
1-3 недели

1. Окна, двери

Устанавливаем оконно-дверные блоки. Проверяем геометрию, защищаем окна и двери, готовим материалы.

2. Монтаж кровли

Укладываем гидро- и пароизоляцию, обрешётку, монтируем кровельное покрытие, водостоки, снегозадержатели и вентиляцию. При необходимости — утепляем.

3. Обработка фасадов

Шлифуем (если нужно), обрабатываем антисептиками и защитными составами, герметизируем швы.

4. Декоративные элементы

Устанавливаем наличники, подшивку свесов, декоративные балки, оформляем террасы и крыльцо.

5. Завершение

Проводим финальную проверку и сдаём работы заказчику.

Инженерные
коммуникации
и внутренняя отделка
2-4 недели

1. Планирование и подготовка

Согласовываем схемы инженерных систем, размечаем трассы, подготавливаем технические помещения.

2. Прокладка коммуникаций

Монтаж электрики, водоснабжения, канализации, отопления, вентиляции и слаботочных систем.

3. Черновая отделка

Устройство перегородок, выравнивание поверхностей, монтаж черновых полов и утепление.

4. Чистовая отделка

Обработка стен и потолков, укладка напольных покрытий, установка дверей, лестниц и декоративных элементов.

5. Установка оборудования

Монтаж сантехники, освещения, розеток, подключение всех систем и проверка их работы.

6. Завершение

Финальная приёмка, устранение недочётов и передача дома заказчику.

Проектирование
любой сложности
Разрабатываем индивидуальные и типовые решения с учетом пожеланий заказчика, особенностей участка и климата. Современные технологии позволяют точно просчитать конструкцию и инженерные системы, создавая тёплые и экологичные дома.
Все виды
строительных работ
Наша компания выполняет полный комплекс строительных работ — от закладки фундамента до внутренней отделки под ключ. Благодаря собственному производству и опытной команде специалистов, мы гарантируем точность исполнения, долговечность конструкций и своевременное завершение всех работ.
Доступные цены
и гарантия
Мы предлагаем честные и прозрачные цены на строительство домов без скрытых доплат. Благодаря собственному производству и отлаженным процессам, наши клиенты получают высокое качество по разумной стоимости.
На все работы и материалы предоставляется официальная гарантия, что подтверждает нашу ответственность и уверенность в результате.
Семейная ипотека
по эскроу от 6%
Оформите льготную ипотеку с первым взносом 20,1% в одном из банков-партнёров.
Заключите договор на строительство, чтобы воспользоваться пониженной ставкой.
Девелоперам
и архитекторам
  • Надежное партнёрство и четкие сроки
  • Индивидуальные проекты при заказе от 5-ти домов
  • Доставляем по всей России
Заказчикам
  • Все виды строительных работ
  • Собранный дом на участке за 2 месяца
  • Подходит для ипотеки — готовы работать со всеми представленными банками, есть аккредитация
Отзывы из 2ГИС
Заказать звонок

Поможем выбрать проект, доработать готовый или реализовать
ваш индивидуальный — мы всегда на связи!

Вы можете отозвать своё согласие, написав на почту pk-stroy@mail.ru

Или вы можете позвонить нам и получить бесплатную консультацию